空き家情報(No.37-19)
物件の詳細


| 物件の概要 | 物件の設備状況 | ||||||
|---|---|---|---|---|---|---|---|
| 所在地 | 羽幌町南7条5丁目27-8 | 空き家になった時期 | 令和7年10月 | 電気 | 引き込み済み | トイレ | 水洗・洋式 |
| 種類 | 売却物件・一般住宅 | 空き家の状況 | 多少の補修必要(補修費用は入居者負担) | ガス | プロパンガス | 車庫 | 有り |
| 築年月 | 平成2年 | 土地面積 | 376.70㎡ | 風呂 | 灯油・給湯式 | 物置 | 無し |
| 構造・規模 | 木造・2階建て | 建物面積 | 1階:104.49㎡ | 水道 | 上水道 | 庭 | 有り |
| 売却価格 | 400万円 | 2階:60.75㎡ | 下水道 | 下水道 | その他 | 車庫に棚あり | |
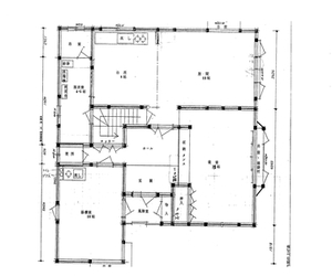
| 間取り | 1階:☑居間(12)畳 ☑台所 ☑風呂 ☑トイレ ☑洋室(12)畳 ☑その他(診療室10畳) | ||||||
| 2階:☑洋室(7)畳、(6)畳 ☑和室(7.5)畳 ☑トイレ ☑その他(納戸) | |||||||
| 特記事項 | 残置物あり(ストーブ)、売却価格については交渉内で応相談。 | ||||||
| 契約交渉 | 直接型 | ||||||
| 主要施設へのアクセス | |||||||
|---|---|---|---|---|---|---|---|
| 役場 | 約0.8㎞ | 消防署 | 約0.3㎞ | 小学校 | 約0.3㎞ | スーパー | 約0.8㎞ |
| バス停 | 約0.2㎞ | 警察署 | 約0.6㎞ | 中学校 | 約1.4㎞ | ホームセンター | 約1.2㎞ |
| 病院 | 約1.1㎞ | 保育所 | 約0.9㎞ | 温泉 | 約1.2㎞ | コンビニ | 約0.3㎞ |
お問い合わせ先
町民課町民生活係 TEL:0164-68-7003 お問い合わせフォーム